Property Detail

39362 Blossom

Palm Desert CA 92211

span widget
$755,000

Status: Active

Property Details

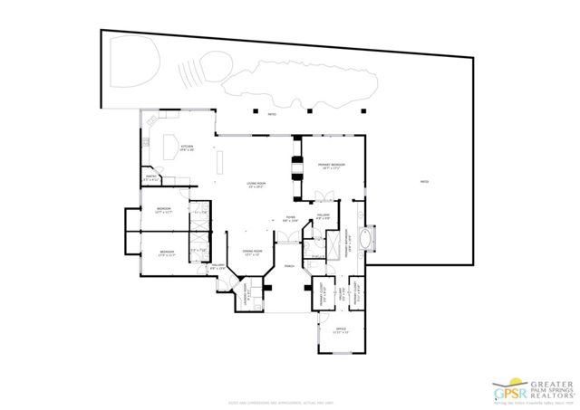
Description

This ultra-private Sun City Palm Desert home, designed around the sought-after Portofino floor plan, sits gracefully on a wide, beautifully landscaped corner lot. Lush plantings wrap the property and create a gentle, retreat-like feel, especially around the pool with its relaxing waterfalls, welcoming firepit areas, and easy outdoor living spaces. A gated front walk and double-door entry open to tall ceilings and a warm, open-concept layout, where a stone fireplace with floor-to-ceiling built-ins anchors the living room and a coved ceiling brings character to the dining area. The kitchen is bright and comfortable with a skylight over the island, a walk-in pantry, and large windows framing views of the PebbleTec pool and spa, built-in BBQ with counter seating, and mountain backdrop. Three ensuite bedrooms offer wonderful separation, including an extended primary suite with dual fireplace shared with the living room, two walk-in closets, a bonus office or workout nook, and a spacious bath with skylight, dual vanities, and separate tub and shower. Guest suites rest on their own wing alongside a powder bath and utility room, plus an extended two-car garage with golf cart space. All of this is set within Sun City Palm Desert, a welcoming 55+ community offering golf, pools, fitness centers, pickleball, tennis, bocce, restaurants, clubs, activities, and low HOA fees that include cable and internet.

Map Location

Listing Agent Brady Sandahl of Keller Williams Luxury Homes. Last updated 2025-11-22 09:18:34.000000. Listing information © 2025 CRMLS.

  • Log in
  • ×