Property Detail

739 Park Pl

Escondido CA 92025

span widget
$850,000

Status: Active

Property Details

Description

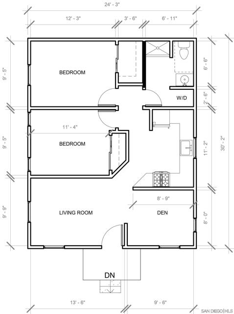
Seller has invested over $160,000 into the property, including more than $100,000 in architectural plans, engineering, and City of Escondido permit fees, along with over $60,000 in upgrades to the existing home. Improvements include new drainage, full replacement of hot and cold water lines, a new HVAC system, brand-new kitchen, a fully remodeled bathroom, and upgraded windows. This flat, ready-to-build lot comes with permits in hand for three additional units (2 ADUs and 1 JADU), offering a rare opportunity for immediate development. The existing fully remodeled 2-bedroom, 1-bathroom home with a den is currently tenant-occupied, allowing for immediate rental income while beginning construction on the additional units.

Map Location

Listing Agent Farid Khayamian of Bluxen, Inc.. Last updated 2026-04-19 08:10:52.000000. Listing information © 2026 CRMLS.

  • Log in
  • ×