Property Detail

17368 Caminito Canasto

San Diego CA 92127

span widget
$699,000

Status: Active

Property Details

Description

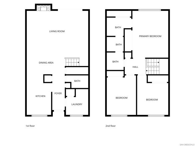
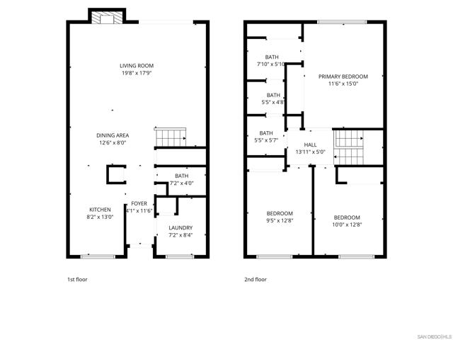
Reduced! Rarely available and Highly desirable interior facing WESTWOOD townhome overlooking the large, lush greenbelt. Enjoy the 1 car garage + additional parking space, and a gated front outdoor courtyard. The main level features luxury vinyl flooring, kitchen with upgraded countertops and newer refrigerator, laundry room with full sized, side-by-side washer and dryer + tons of storage, and a powder room (half bath). The kitchen opens to the huge living/dining room area with a gas fireplace and sliding doors to the back patio with direct access to the greenbelt behind. Upstairs are 2 bedrooms plus the primary bedroom and a spacious bathroom with tons of counter space. The light and bright primary bedroom features an abundance of closet space and a view of the greenbelt. Amenities of the Westwood Community include highly rated schools and access to the Westwood Club, which offers a pools, spa, fitness center, tennis, racquetball, and pickleball courts, a mini-golf course, and more! Solar lease in place and will be assumed by buyer. HOA pays water and trash. Newer refrigerator and water heater. Some listing photos have been virtually staged. Unstaged photos also provided.

Map Location

Listing Agent Antoinette Embry of Compass. Last updated 2026-03-20 08:17:54.000000. Listing information © 2026 CRMLS.

  • Log in
  • ×