Property Detail

4136 Palisades Road

San Diego CA 92116

span widget
$3,725,000

Status: Active

Property Details

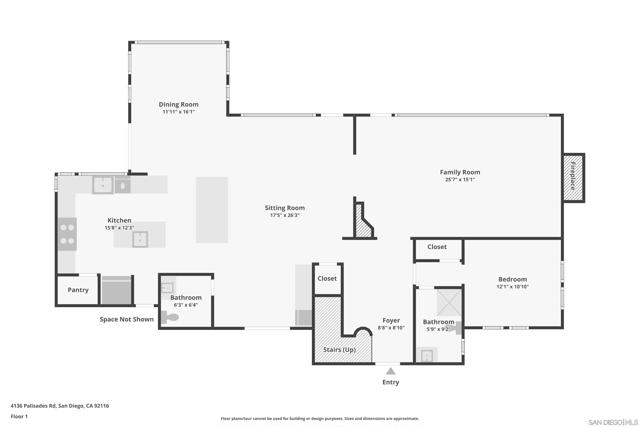
Description

One of Kensington's rarest offerings-perched on the north canyon rim with panoramic views across Mission Valley including the Mission, Snapdragon Stadium, and the mountains beyond. The entire home was recently remodeled with the highest-end cabinets, quartzite counters, marble stairs, appliances, light fixtures, and more. Two enormous walk-in closets, one featuring an island and display shelves for handbags, shoes, etc.  Infinity-edge pool and spa with solar heating. Outdoor kitchen and fireplace with multiple lounging areas in both the front and back yards. Fully paid-for electric solar and backup Telsa battery cover most electricity charges and keeps the lights on when power goes out. EV charger too. Dedicated home office with private balcony (that could also serve as another bedroom). Downstairs en-suite bedroom great for guests, or live-in family members. Extra large entertainer’s kitchen features huge walk-in pantry, two islands, and opens up to both the front yard with built-in fire pit, and the rear deck. Large windows showcase the soaring views from every room. Expansive master retreat including siting area and over-sized bathroom with walk-in shower, tub, and two vanities. Ample parking in garage and driveway. Large storage unit on property.

Map Location

Listing Agent Patrick Mercer of Keller Williams La Jolla. Last updated 2026-02-23 09:20:03.000000. Listing information © 2026 CRMLS.

  • Log in
  • ×