Property Detail

1485 Morena

San Diego CA 92110

span widget
$1,895,000

Status: Active

Property Details

Description

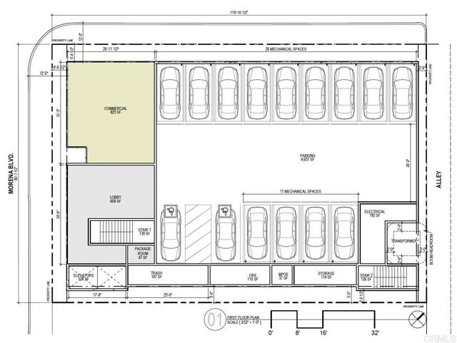
A very well-located high-density multi-family development site situated in the Bay Park neighborhood of San Diego. This 9,280 square-foot paved corner lot is level and has alley access. The subject property’s base zone is CC 4-2 and is within San Diego’s Complete Communities overlay (providing a 5.5 FAR allowance). Complete Communities is an initiative by the City of San Diego that provides high-density residential development along the city’s transit corridors. Fault hazard evaluation has determined that there is no evidence of active faults. Phase I & II, boundary & topographic survey and feasibility study are complete. Seller has a 9 unit townhome study (2 x 1750 sf homes, 3 x 1500 sf homes and 4 x 1150 sf homes).

Map Location

Listing Agent Tommy Crudo of Compass. Last updated 2026-03-05 09:21:03.000000. Listing information © 2026 CRMLS.

  • Log in
  • ×