Property Detail

2617 Ocean Front Walk

San Diego CA 92109

span widget
$4,650,000

Status: Active

Property Details

Description

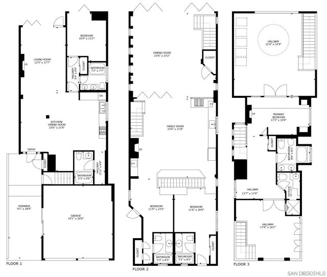
Variance granted 2-4 Units // Oceanfront 2-unit luxury in South Mission Beach with sweeping west and south-facing views of the Pacific, passing boats, coastal wildlife, & unforgettable sunsets from the 2nd/3rd level main unit. This versatile property features 2 fully equipped units: #2617 is the ground floor guest suite w/ 1 bedroom 2 full baths, full kitchen, & its own laundry. #2619 spans the 2nd & 3rd floors & is currently configured as an open-concept coastal retreat for the owner's family vacations featuring 4 full baths. Besides the large ground level patio w/ gas fire table, there is 660sf of ocean-view covered decks & LaCantina-style doors creating seamless indoor-outdoor living. 2 car garage has extra high doors & ceilings. If short term renting is part of your goal, the 2 units make that much easier with city rules! What makes 2617-19 Ocean Front Walk so special? 1] South Mission Beach offers less crowds and traffic than North Mission Beach because there's no thru-traffic. 2] This section of ocean-front homes does not have the boardwalk directly in front, offering privacy and security, and ability to step directly into sand. 3] The SouthWest orientation overlooking the Mission Bay inlet gives gorgeous views of all types of yachts and boats heading out to (and back from) sea, as well as south to Ocean Beach, Sunset Cliffs, Cabrillo, and the OB Pier.

Map Location

Listing Agent Quinn Myers of PURE San Diego. Last updated 2026-03-07 09:11:07.000000. Listing information © 2026 CRMLS.

  • Log in
  • ×