Property Detail

7304 Celata

San Diego CA 92129

span widget
$1,799,900

Status: Active

Property Details

Description

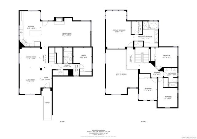
Welcome to your dream home in Park Village — where everyday living feels like a retreat. This stunning home sits on a spacious, private corner lot with fresh flooring, paint, fixtures, and hardware throughout. The soaring two-story great room, chef's kitchen, stone fireplace, and sun-drenched backyard create spaces made for both entertaining and unwinding. A main-floor optional bedroom/office and full bath add flexibility. Paid solar keeps costs low. And the best part? You're steps from the trails of Los Peñasquitos Canyon Preserve — San Diego's most beloved open space. This is Park Village living at its finest. Home Upgrades: Paid Solar: 16 panels Added unpermitted downstairs office 2022 (Builder option to add the bedroom in this model). Upgraded downstairs bath and upstairs kids bath 2022. New blinds throughout, exterior home painting- all done between 2022-2024 . Interior painted and new water heater 2026. New Luxury Vinyl Plank flooring 2026 New carpet 2026. New light fixtures in entry, dining room and primary bath 2026. New ceiling fan with light in family room 2026. New interior door handles 2026. New kitchen, primary bathroom and laundry cabinet hardware 2026. Schools: Park Village Elementary, Mesa Verde Middle, Westview High. No HOA. No Mello Roos

Map Location

Listing Agent Meghna Surana of Keller Williams Realty. Last updated 2026-04-02 08:20:03.000000. Listing information © 2026 CRMLS.

  • Log in
  • ×