Property Detail

Randolph St

San Diego CA 92103

span widget
$895,000

Status: Active

Property Details

Description

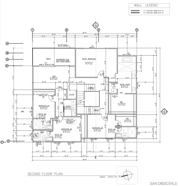
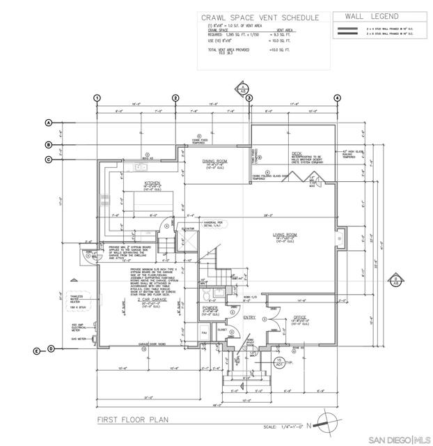
An exceptional opportunity to create a legacy estate on a rare and expansive .36 acre parcel in the heart of Mission Hills. Perfectly positioned to capture serene greenbelt canyon views, this premier homesite offers both privacy and a picturesque natural backdrop, an increasingly scarce combination in one of San Diego’s most coveted neighborhoods. Plans are currently submitted for a spectacular 3,324SF 4 bedroom + office residence, thoughtfully designed to blend sophisticated architecture with the surrounding landscape. The proposed design showcases sprawling decks and expansive outdoor living spaces, ideal for entertaining, relaxing, and fully embracing the tranquil canyon setting. Seamless indoor outdoor flow is central to the vision, maximizing both the views and the remarkable scale of the lot. Ideally located just blocks from Pioneer Park and the Mission Hills Tennis Courts, this property also offers effortless access to the neighborhood’s charming village atmosphere, with acclaimed shops, restaurants, and local amenities moments away. A rare canvas in an iconic location, build your dream home and enjoy the very best of Mission Hills living.

Map Location

Listing Agent Sanjay Solomon of Compass. Last updated 2026-04-22 08:21:58.000000. Listing information © 2026 CRMLS.

  • Log in
  • ×