Property Detail

S 66th

San Diego CA 92114

span widget
$149,900

Status: Active

Property Details

Description

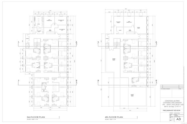
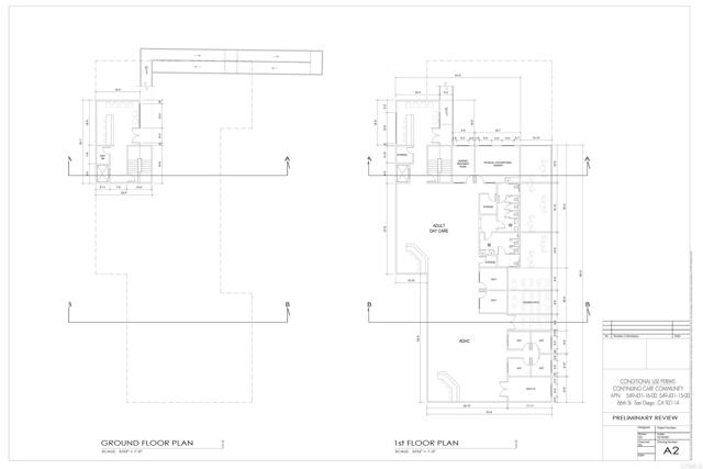
Rare opportunity to acquire land offering strong development potential. Preliminary conceptual plans feature a proposed ±17,000 sq. ft., 3-story Senior Care Facility with 18 beds, subject to Conditional Use Permit (CUP) approval. Plans are conceptual only and have not been submitted to or reviewed by the City. Sale includes all reports used to create preliminary drawings, including Survey, Topography, and Soils Report. Parcels is zoned RM-1-1, providing the opportunity for multi-family residential development consistent with zoning regulations. Buyer to verify zoning, density, permitted uses, development standards, and all requirements with the City of San Diego. Southern lot is also available for sale to be sold together with this lot. Seller holds a California real estate license and has an ownership interest in the selling entity. For additional information, please contact Erick Espinosa 619-735-5700

Map Location

Listing Agent Alex Lombrozo of LIFE residential Inc.. Last updated 2026-04-28 08:21:18.000000. Listing information © 2026 CRMLS.

  • Log in
  • ×