Property Detail

1804 Saltbush

San Marcos CA 92069

span widget
$801,000

Status: Active

Property Details

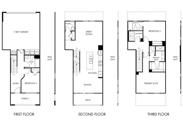
Description

Brand new, energy-efficient home available NOW! The first-floor bed with full bath provides comfort for visiting guests or a home office. The open-concept living space is ideal for entertaining, featuring a chef-inspired kitchen with large island, dedicated dining space, and a powder bath for guests. Cielo, in San Marcos, CA, is the place for your carefree SoCal life. Offering stylish townhomes with spacious, open-concept floorplans, chef-inspired kitchens, primary suites with walk-in closets and covered decks. Homeowners will benefit from Cielo's turnkey, move-in ready features such as included Whirlpool® appliances and whole home blinds. Each of our homes is built with innovative, energy-efficient features designed to help you enjoy more savings, better health, real comfort and peace of mind.

Map Location

Listing Agent Shawn Black of Meritage Homes of California. Last updated 2025-11-21 09:18:42.000000. Listing information © 2025 CRMLS.

  • Log in
  • ×