Property Detail

5102 Vesper

Sherman Oaks CA 91403

span widget
$1,440,000

Status: Active

Property Details

Description

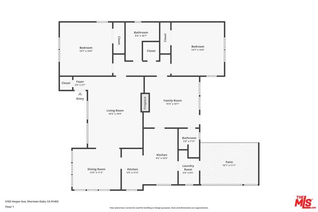
Your picture-perfect haven awaits at the end of a peaceful cul-de-sac, surrounded by gardens and sunshine. This pristine single-story Ranch blends timeless character with modern comfort, offering 1,722 sq ft of sunlit living space framed by oversized picture windows and original refinished oak hardwood floors. The newly landscaped wraparound yard creates a warm, storybook welcome with a cottage-style pollinator garden filled with seasonal color, hummingbirds, and butterflies.Inside, the generously sized living and dining rooms flow into a spacious kitchen with abundant cabinetry, stainless steel appliances, and a cheerful breakfast nook. A private bedroom wing features two generous bedrooms and a refreshed hall bathroom with original charm. The large family room includes its own entrance and a remodeled en-suite bath, creating flexibility for a guest suite, office, studio, or optional third bedroom, with the ability to open the floor plan even further if desired.The expansive 7,101 sq ft corner lot offers true California living with a classic sparkling pool, patio, lanai, newly rebuilt deck, dog run, lemon tree, garden area, and storage shed. Additional highlights include a dedicated laundry room, extensive storage, a new high-efficiency 17 SEER A/C system, and a full two-car garage with ADU potential.Surrounded by a warm, welcoming neighborhood and moments from Trader Joe's, Gelson's, Fashion Square, Ventura Boulevard dining, and award-winning Kester Elementary. Turnkey, charming, and ideally located for effortless everyday living.

Map Location

Listing Agent Cynthia Perez-Brown of Sotheby's International Realty. Last updated 2025-11-20 09:18:11.000000. Listing information © 2025 CRMLS.

  • Log in
  • ×