Property Detail

257 Ave 54

Los Angeles CA 90042

span widget
$5,395

Status: Active

Property Details

Description

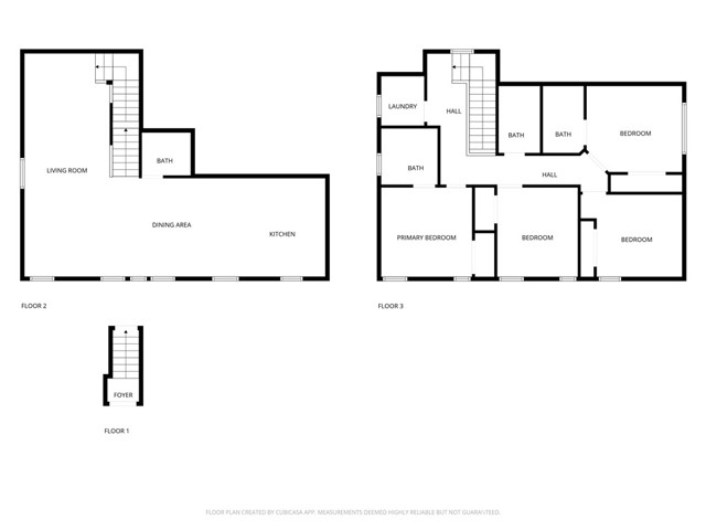
Brand New Construction in Highland Park! Welcome to 257 Avenue 54, a stunning 4-bedroom, 4-bathroom tri-level townhouse offering modern luxury and thoughtful design. Enter into a light-filled foyer and ascend to the expansive second floor, where the heart of the home awaits. This level boasts a spacious open-concept living and dining area with soaring ceilings, white oak flooring, custom iron railings, and abundant natural light. The chef's kitchen features a large center island, sleek white oak cabinetry, quartz countertops, and a complete brand-new stainless steel appliance package including refrigerator, range, dishwasher, and microwave. A private bedroom and full bathroom are also located on this floor, perfect for guests or a home office. The top level offers three spacious bedrooms, each with its own en-suite bathroom, providing privacy and convenience for every resident. A laundry area with washer and dryer is also located on this level for added ease. Designer touches continue throughout, from spa-inspired bathrooms with modern vanities and premium tile to recessed lighting and matte black hardware. Additional features include energy-efficient solar panels, EV charging capability, central A/C and heat, and secured parking. Be the first to live in this brand-new building that blends energy efficiency with contemporary style. Located in the heart of Highland Park, you'll enjoy easy access to York Boulevard's boutiques and coffee shops, the vibrant Figueroa Street corridor, and local favorites like Highland Park Bowl, Kitchen Mouse, Café de Leche, and Hippo. Just one mile to the Metro Gold Line and minutes from Downtown LA, Pasadena, and Dodger Stadium, this residence offers the very best of Highland Park living.

Map Location

Listing Agent Drew Dunn of Four Brothers Real Estate, Inc.. Last updated 2025-11-20 09:19:08.000000. Listing information © 2025 CRMLS.

  • Log in
  • ×