Property Detail

16503 Smoke Tree

Hesperia CA 92345

span widget
$550,000

Status: Active

Property Details

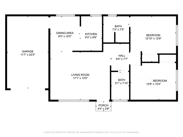
Description

Looking for an investment opportunity, presenting this charming Hesperia duplex. Situated on a desirable corner lot in a peaceful neighborhood, this property offers the perfect setup to live in one unit while renting out the other—or lease both. Property Highlights... Duplex: Each single-story unit features a spacious 2-bedroom, 2-bathroom layout. Modern Conveniences: Kitchens come fully equipped with gas ranges and dishwashers. Private Amenities: Fenced yards for added privacy and outdoor living. Parking & Laundry: Each unit includes an attached single-car garage with convenient laundry hook-ups. Prime Location: Ideally located close to essential city amenities, shopping, and dining. Don’t miss out on this fantastic opportunity to grow your real estate portfolio in a great location! PLEASE DO NOT DISTURB THE CURRENT TENANTS

Map Location

Listing Agent Leah Christensen of Capital Development Realty Services Inc.. Last updated 2026-02-20 09:11:27.000000. Listing information © 2026 CRMLS.

  • Log in
  • ×