Property Detail

5455 Via Bello

San Diego CA 92111

span widget
$899,999

Status: Active

Property Details

Description

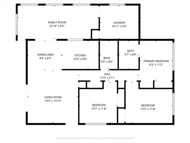
Location, Location, Location! Just outside of Bay Park. Single Level Home on an Extra Wide Lot in Clairemont West! 3 spacious bedrooms, 2 full baths with a Large, Fully Fenced Backyard. Nice, Quiet street only 1 block west to Tecolote Canyon for hiking, 1 block east to Clairemont Athletic Park. Exactly 2 miles to Mission Bay and minutes to Pacific Beach. Addition adds approximately 300-400 sq feet of living space which includes family room and huge laundry room inside home which is rare and big enough to call an optional bedroom or office. This square footage of this addition is not included in the assessed sq footage because addition is unpermitted. This lot is big enough to add the garage of your dreams, ADU, or both. Home is currently run as a successful VRBO with STR in place. This home has endless possibilities, don't miss out!

Map Location

Listing Agent Erika Aitken of ACE Realty, Inc.. Last updated 2026-03-09 08:19:11.000000. Listing information © 2026 CRMLS.

  • Log in
  • ×