Property Detail

1226 8Th St

Imperial Beach CA 91932

span widget
$1,459,000

Status: Active

Property Details

Description

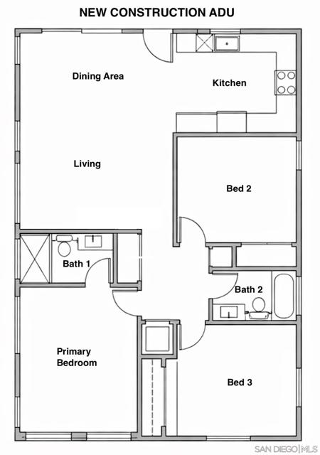
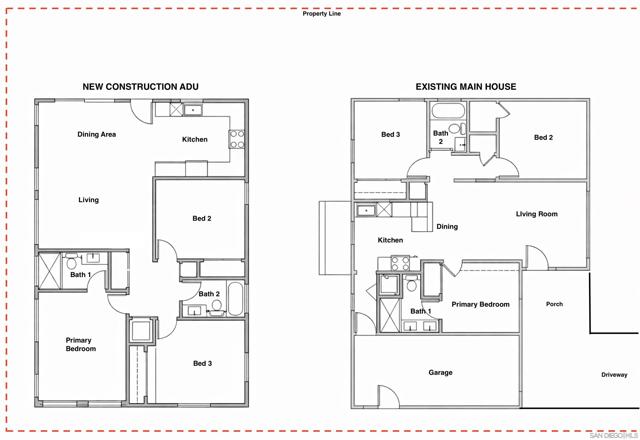
Sensational, move-in ready! Rare opportunity to own a new-construction 3-bedroom, 2-bath ADU paired with a beautifully remodeled 3-bed 2 bath main home at 1226 8th Street in Imperial Beach. The rear ADU is brand-new ground-up construction totaling approximately 1,200 sq. ft., featuring a modern great-room layout, high ceilings, its own private entrance, generous outdoor space, and a dedicated stackable laundry closet. Designed for comfort, privacy, and flexibility, the ADU functions like a standalone home while sharing utilities with the main residence. The front home is a fully remodeled 3-bedroom, 2-bath residence that was previously taken down to the studs and rebuilt with extensive upgrades throughout, including electrical, plumbing, roof, windows, flooring, doors, fixtures, and appliances. It offers an open-concept living space, a modern kitchen with pantry, a primary suite with dual-sink bath, indoor laundry, EV charger, new garage door, and fresh landscaping. Each residence enjoys its own private outdoor area and separate entrance. Utilities are shared between the two homes, but solar installed on the main house helps offset electricity usage for both units, providing long-term efficiency and cost savings. Located just minutes from the beach, shopping, dining, and schools, this property offers exceptional versatility—ideal for multi-generational living, owner-occupants seeking rental income, or investors looking for a high-quality dual-residence setup in a coastal community.

Map Location

Listing Agent Ken May of Compass. Last updated 2026-03-21 08:24:17.000000. Listing information © 2026 CRMLS.

  • Log in
  • ×