Property Detail

10294 Scripps Poway Pkwy #5

San Diego CA 92131

span widget
$831,000

Status: Active

Property Details

Description

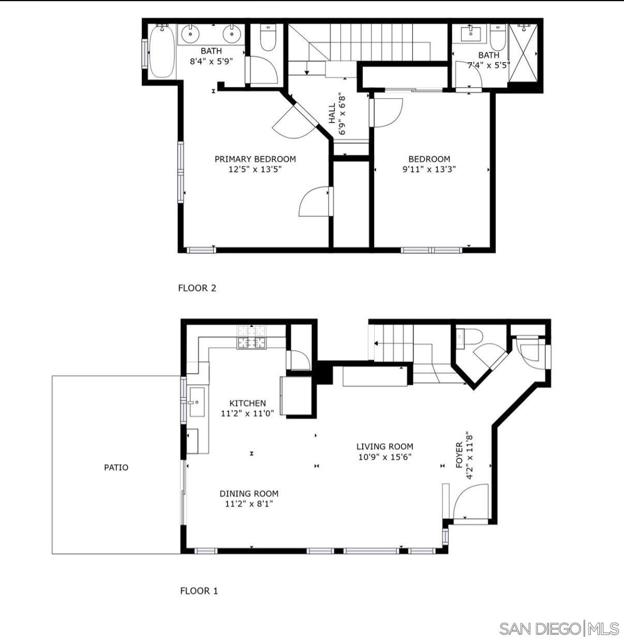
Beautifully Renovated Turnkey Home in Scripps Ranch Move-in ready home in highly desirable Scripps Ranch with convenient access to I-15, shopping, dining, and everyday essentials. This newly renovated residence features new flooring, fresh interior paint, and recessed lighting, creating a bright and modern living space. Upgrades include a 240V EV charging outlet, whole-home water softener, full HVAC system, and in-unit washer and dryer. The layout offers two spacious primary-style bedrooms, each with its own en-suite bathroom—ideal for flexible living arrangements. Enjoy a private patio with peaceful views, perfect for relaxing or entertaining. Located within a highly regarded school area, including Dingeman Elementary School, Marshall Middle School, and Scripps Ranch High School, all known for strong academic programs and community reputation. (Buyer to verify school assignments and availability.) Community amenities include pool, spa, BBQ areas, and a children’s play area/park, all within a well-maintained, family-friendly setting. HOA covers landscaping and insurance, providing a low-maintenance lifestyle. Don’t miss this opportunity to own a fully upgraded home in a prime location!

Map Location

Listing Agent Shrithi Agarwal of Real Broker. Last updated 2026-04-04 08:17:20.000000. Listing information © 2026 CRMLS.

  • Log in
  • ×