Property Detail

7733 Lexington

West Hollywood CA 90046

span widget
$1,895,000

Status: Active

Property Details

Description

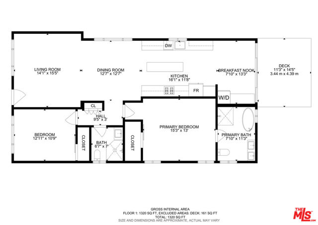
Priced below comps, this effortlessly cool and design-driven Modern Craftsman offers a rare opportunity in a highly walkable West Hollywood location, just moments from top dining, cafes, boutiques, and creative hotspots. Positioned below recent comparable sales, it stands out as one of the best values currently available. The 2-bedroom, 2-bathroom main residence features vaulted ceilings, exposed wood beams, and abundant natural light, creating an open, airy atmosphere with an elevated boho-chic aesthetic. Expansive glass doors open to a private deck and lush outdoor spaces, delivering seamless indoor-outdoor living ideal for both everyday enjoyment and entertaining. A fully permitted detached 1-bedroom, 1-bathroom ADU with its own private entrance adds exceptional versatility perfect for guests, a creative studio, or income potential. This flexibility also makes the property an ideal turnkey option for a 1031 exchange. This new offering presents a compelling opportunity for buyers ready to act. Select high-end designer furnishings may be included, offering a truly move-in-ready experience. A rare combination of location, design, flexibility, and value!

Map Location

Listing Agent Mia Trudeau of Sotheby's International Realty. Last updated 2026-04-07 08:16:59.000000. Listing information © 2026 CRMLS.

  • Log in
  • ×