Property Detail

3933 Utah

San Diego CA 92104

span widget
$2,625,000

Status: Active

Property Details

Description

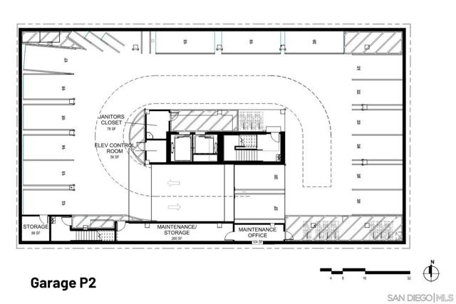
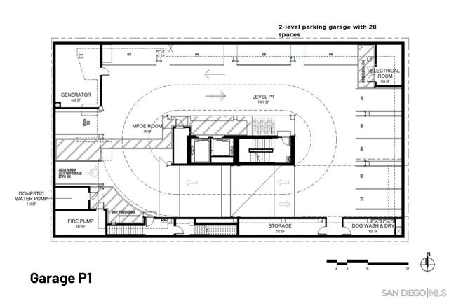
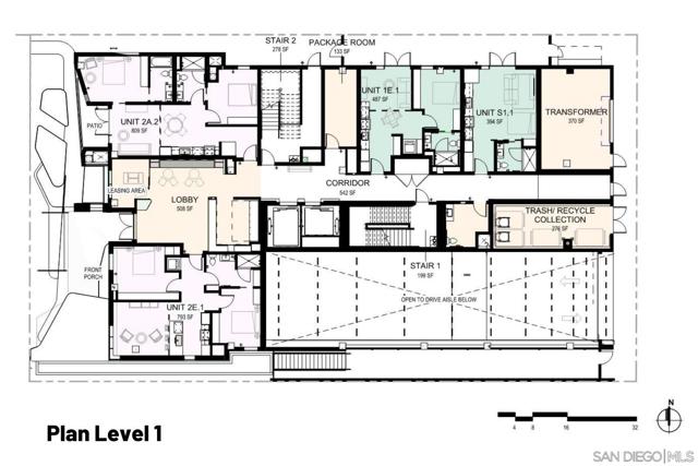
One of San Diego's rarest development opportunities, a permit-approved, shovel-ready site for an 8-story, 70-unit multifamily building in the heart of North Park. Entitlements are secured, architectural plans by Ehrlich Yanai Rhee Chaney Architects are complete, and four occupied residential units renovated in 2023 with new appliances and updated finishes generate $12,885/month ($154,620/yr) in current income while you prepare for construction. The approved project features 70 units averaging ~615 SF (studios, 1BR, 2BR), ground-floor lobby and leasing space, rooftop clubhouse and deck, and 29 underground parking spaces. Projected market rents are supported by comparable properties averaging $4.57/SF with 90%+ stabilized occupancy. At $2,625,000, just $37,500 per approved unit, this assemblage offers compelling value relative to comparable entitled land sales ranging from $69,000 to $115,000/unit. North Park is fully built out with virtually no remaining infill sites of scale. WalkScore of 97. 450,000+ jobs within 15 minutes. Both parcels (APN #446-411-11-00 + APN #446-411-12-00) must be acquired together. Architectural plans and permits for the 70-unit development are available for separate purchase. Inquire with agent for details and pricing.

Map Location

Listing Agent Ken Schwartz of Century 21 Affiliated. Last updated 2026-04-08 08:21:48.000000. Listing information © 2026 CRMLS.

  • Log in
  • ×