Property Detail

31 Briarwood

Irvine CA 92604

span widget
$3,450

Status: Active

Property Details

Description

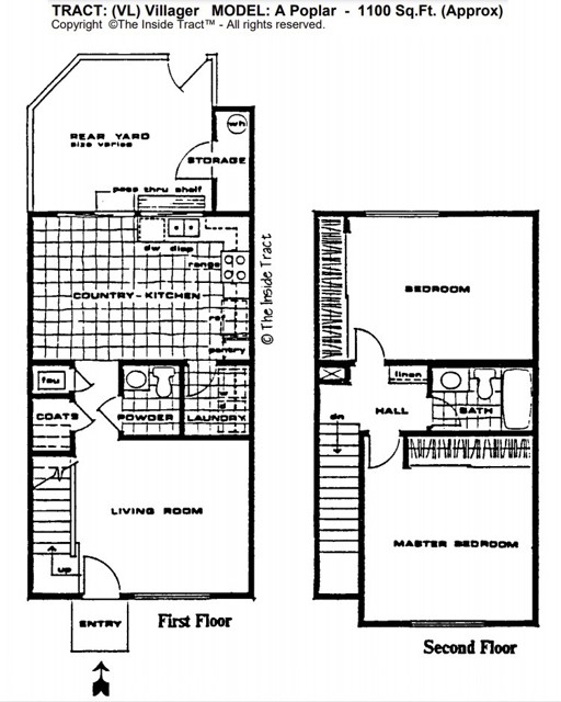
This 2-bedroom, 1.5-bath townhouse is located in the highly desirable Woodbridge master-planned community of Irvine. The newer kitchen has quartz counters, shaker cabinets, and stainless steel appliances. Floored with laminate throughout, this home also features an updated powder room downstairs and a remodeled full bath upstairs. Other highlights include a laundry room with a provided washer and dryer, as well as a fully enclosed private patio, which includes storage and access to the adjacent two-car carport. Woodbridge is an excellent community to live in, with dozens of parks and community swimming pools. There is also ready access to tennis, basketball, and racquetball courts, as well as North and South Lake Beach Club lagoons. This home is also conveniently in the heart of Irvine near The District, Diamond Jamboree, The Market Place, Parks, Retail Shops, and easy access to Freeways. Rent includes HOA dues and trash. Pets considered with additional rent and deposit.

Map Location

Listing Agent Eric Sharkey of 24 Hour Property Management. Last updated 2026-04-19 08:19:12.000000. Listing information © 2026 CRMLS.

  • Log in
  • ×